AS86 SLIDE

Sliding and Lift-and-Slide Door System

 
AS86 SLIDE

Description

AS86 SLIDE Lift-and-Slide Door System.

Aluron AS86 SLIDE is a solution designed for the fabrication of thermally insulated sliding and lift-and-slide doors, based on 2-, 3-, and 4-track frames. The system has been primarily developed for projects in regions with mild, warmer climates. It can also function as a thermally efficient partition, making it an excellent choice for terrace enclosures and winter gardens, ensuring proper thermal insulation and year-round user comfort. The system can be used in all available configuration variants. Depending on project requirements, two frame options are available: HI and ECO. The HI version offers enhanced thermal insulation thanks to two thermal breaks, creating a double thermal barrier. The ECO version is a more cost-effective solution, equipped with a single centrally positioned thermal break.

SYSTEM ADVANTAGES

Variants

The Aluron AS86 SLIDE system can be applied in all available construction configurations. Depending on project requirements, two frame variants are available: HI and ECO. The HI version provides improved insulation through a double thermal break system, while the ECO variant offers a more economical option with a single thermal break.

Configurations

AS86 SLIDE is available in all popular layout schemes, and its compatibility with the AS M system and linear drainage solutions further expands its application range.

Additionally, the system allows for single- and double-track constructions, including modern pocket door (galandage) solutions, enabling the sash to be fully concealed within the wall for maximum opening space.

Design & Practical Features

The Aluron AS86 SLIDE system combines modern design with practical functionality, offering flexibility for various architectural projects. The structure can be extended with side and top lights to improve natural lighting and enhance the visual lightness of the building. Two prefabrication methods are available for frames and sashes: dowel connection, screw connection. This simplifies installation and allows production processes to be adapted to the manufacturer’s needs.

Easy Installation

Frame profiles can be cut at 90° or 45°, providing greater design flexibility and efficient installation. The use of glazing beads simplifies both the glazing process and future glass replacement.

Wide Range of Hardware

The system supports hardware with concealed locking points integrated into the espagnolette, eliminating the need for additional milling. This results in faster production, improved product aesthetics. A wide range of hardware options is available, including solutions from renowned manufacturers such as Master and Roto, as well as dedicated Master solutions specifically designed for lift-and-slide systems.

Thermal Performance

The system supports glazing units with a thickness of 21–32 mm in sliding doors. It enables thermal performance of Ud = 1.7–1.5 W/m²K when using double glazing.

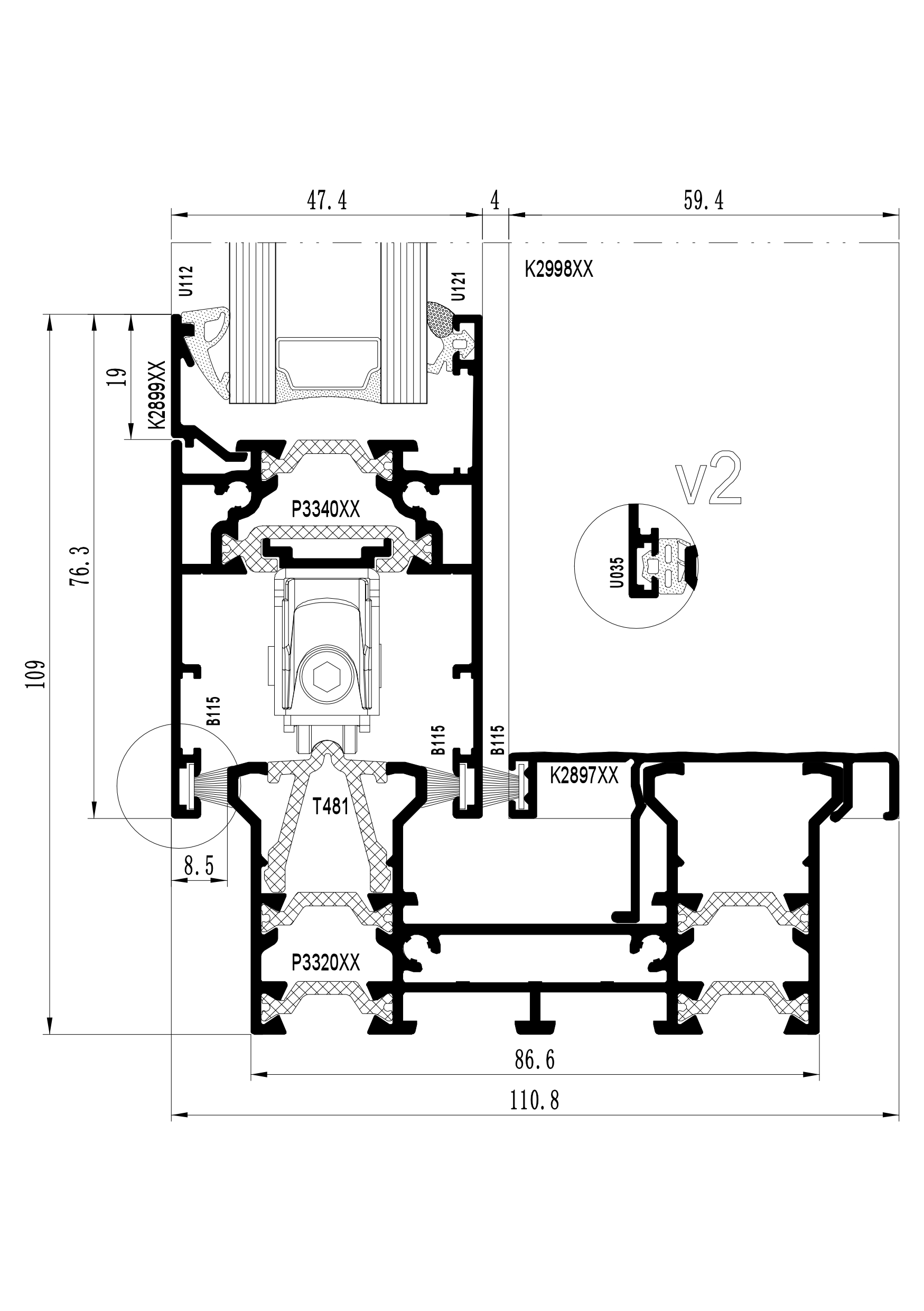
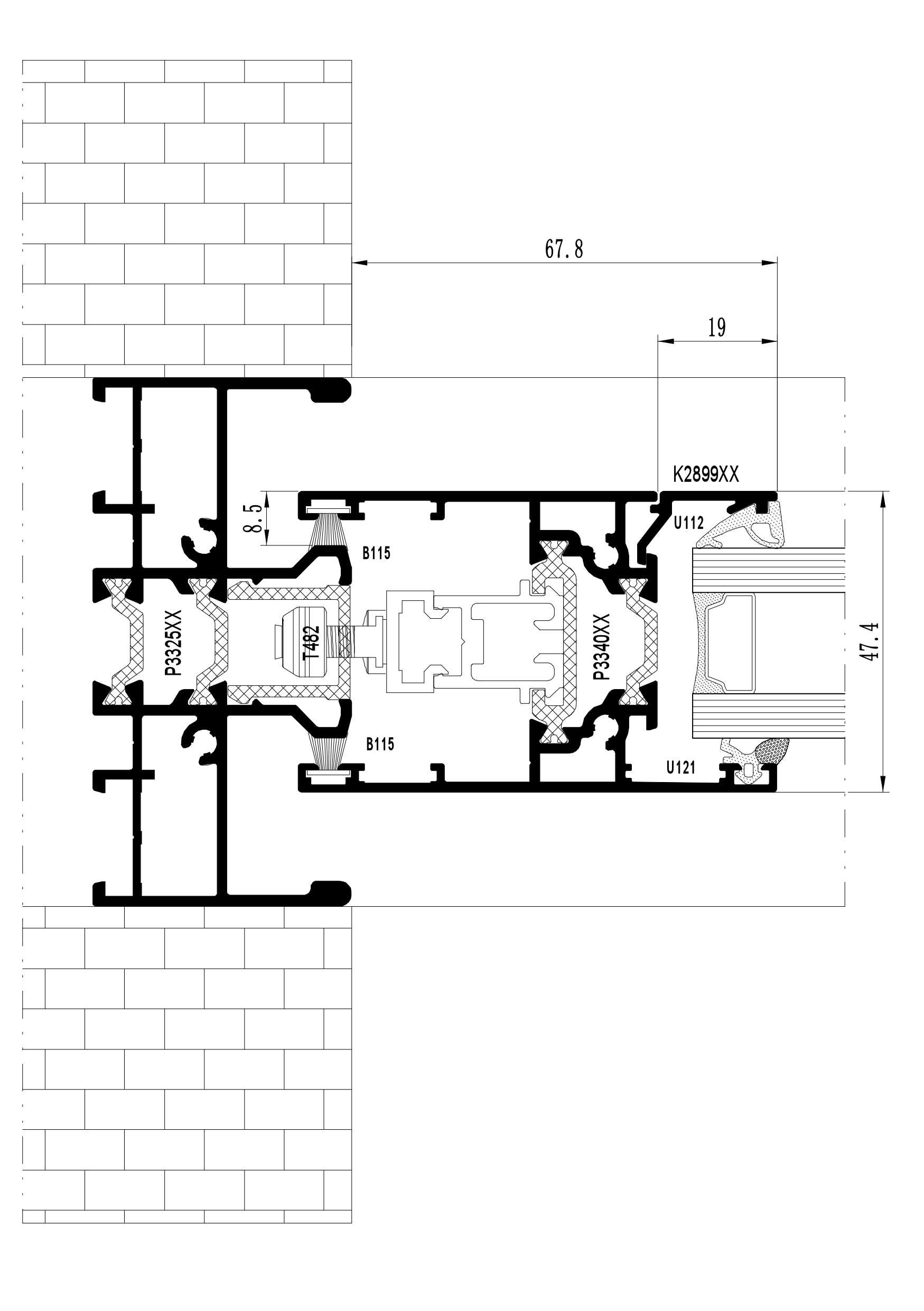
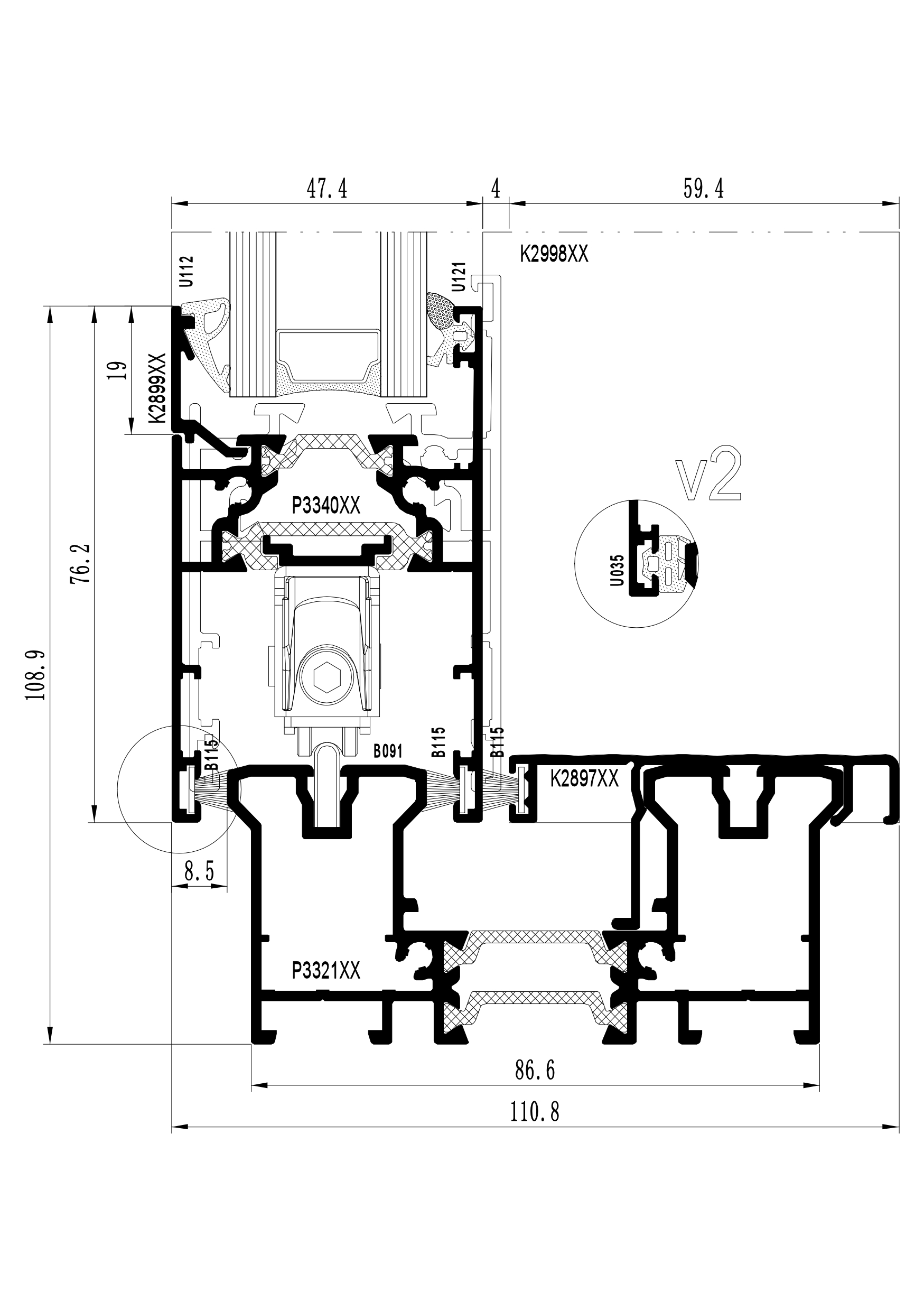
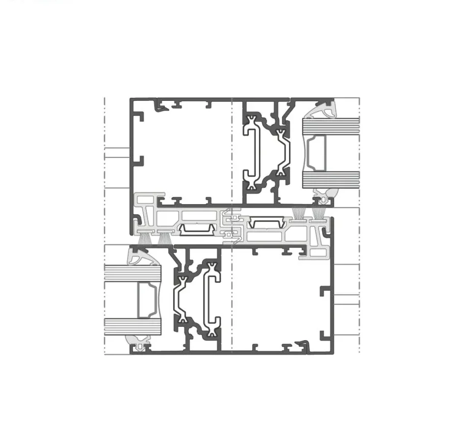
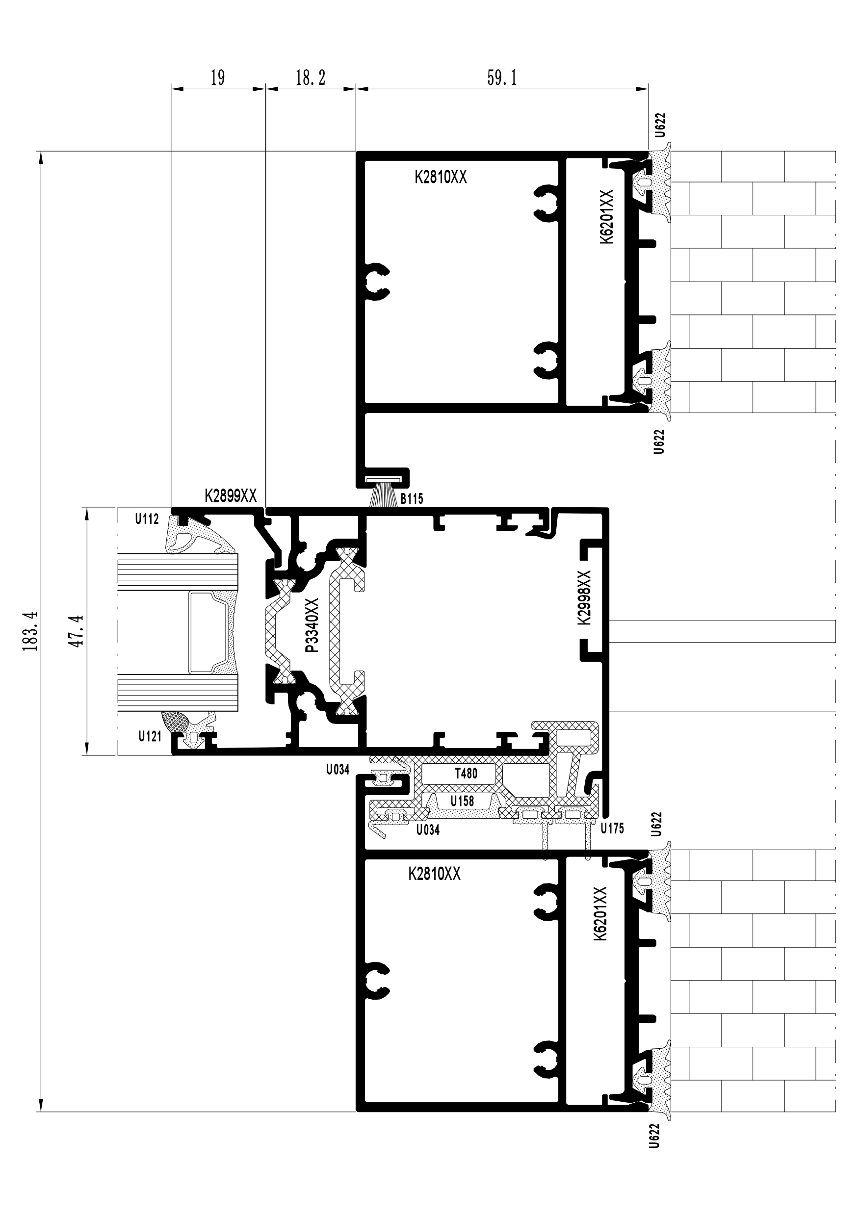
SECTIONS

Selected Technical Parameters – AS 86 SLIDE

Maximum height

2700 mm

Maximum sash width

2500 mm

Maximum sash weight

200 kg

Glazing range

21-32 mm

Sash depth

47 mm

Frame depth (2-track)

110 mm

Frame depth (3-track)

174 mm

Thermal insulation Ud (3000 x 2200 mm)

from 1.5 W/m²K

Air permeability

Class 3

Water tightness

Class 7A

Wind load resistance

Class C3

Colors

Standard colors
Non-standard Colors
Wood-like colors
Structural lacquer