AS 75P Entrance Doors

Panel Door System

 
AS 75P Entrance Doors

Characteristics

The AS 75P system is an aluminium panel door construction made of three-chamber profiles with very good thermal insulation and technical parameters. The system is designed for the prefabrication of thermally insulated doors with a panel bonded over the entire surface of the door leaf. It fits perfectly in smart, modern buildings as well as in classic architecture. Panel doors in the AS 75P system are intended for individual installations as well as shopfront applications. Solid workmanship, the durability of aluminium and a wide range of designs guarantee long-term strength and aesthetics.

SYSTEM BENEFITS

Solid construction and innovative solutions

A three-chamber system designed for the prefabrication of thermally insulated doors equipped with a panel bonded over the entire door leaf surface. It looks ideal in both modern and classic buildings. Panel doors in the AS 75P system are designed for individual installations and shopfront applications. High-quality workmanship, the durability of aluminium and a wide range of designs ensure long-lasting durability, while the possibility of manufacturing panels flush on one or both sides provides exceptional aesthetics.

Design

Panels available in versions: opaque, with transparent elements, fully glazed, with stainless steel applications. Possibility to create individual designs and panel patterns – milling shapes and openings. Available hinge types: surface-mounted hinges, roller hinges, concealed hinges. The system is also available in the GLASS LINE version with a fully glazed panel.

Functionality

Three-chamber aluminium profile construction. Multipoint locks as standard, electromotor locks available. Four thermal variants. Doors opening inwards or outwards. New solutions: recessed handle with integrated LED lighting and decorative slats. Possibility to construct single-leaf and double-leaf doors with side lights or top lights

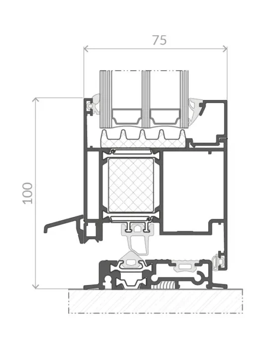
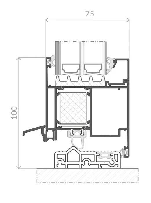
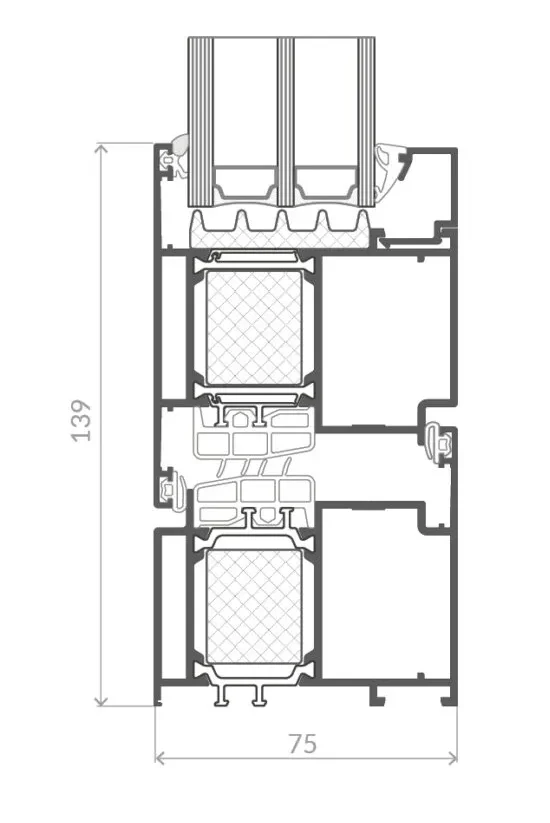
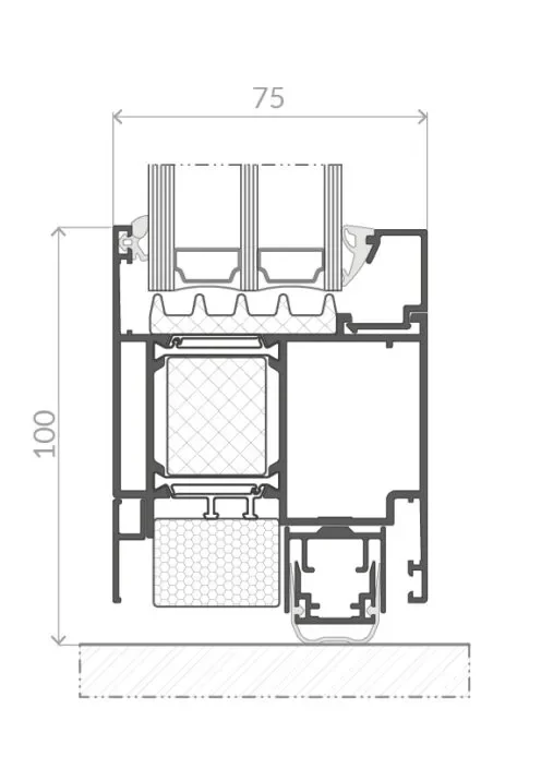
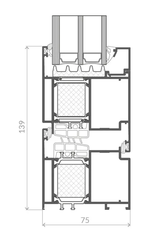
SECTIONS

Maximum door dimensions

1400 mm x 3000 mm

Maximum weight

200 kg

Door profile depth

75 mm

Glazing range

17-57 mm

Door thermal insulation Uw (for 4 variants)

od 0,93 W/m2K

Minimum visible frame width

69 mm

Minimum visible leaf width

65 mm

Colors

Standard colors
NON-STANDARD COLORS
WOOD-LIKE COLORS
TIGER - STRUCTURLACK