ZIP – SCREEN ECO

Modern shading solution for large glazing and outdoor spaces

 
 ZIP – SCREEN ECO

Overview

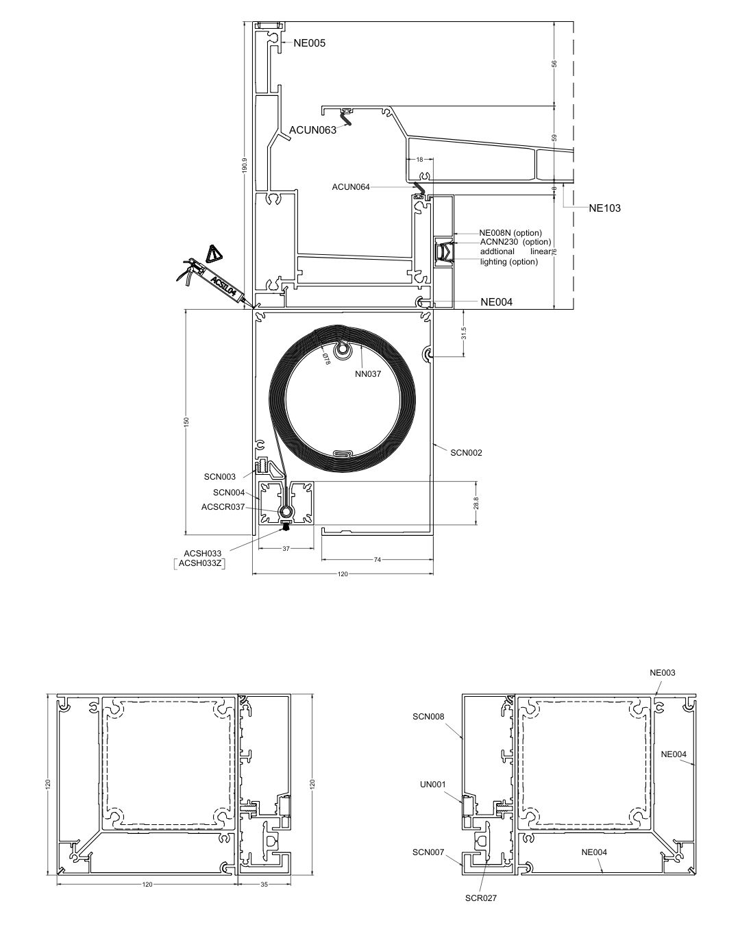
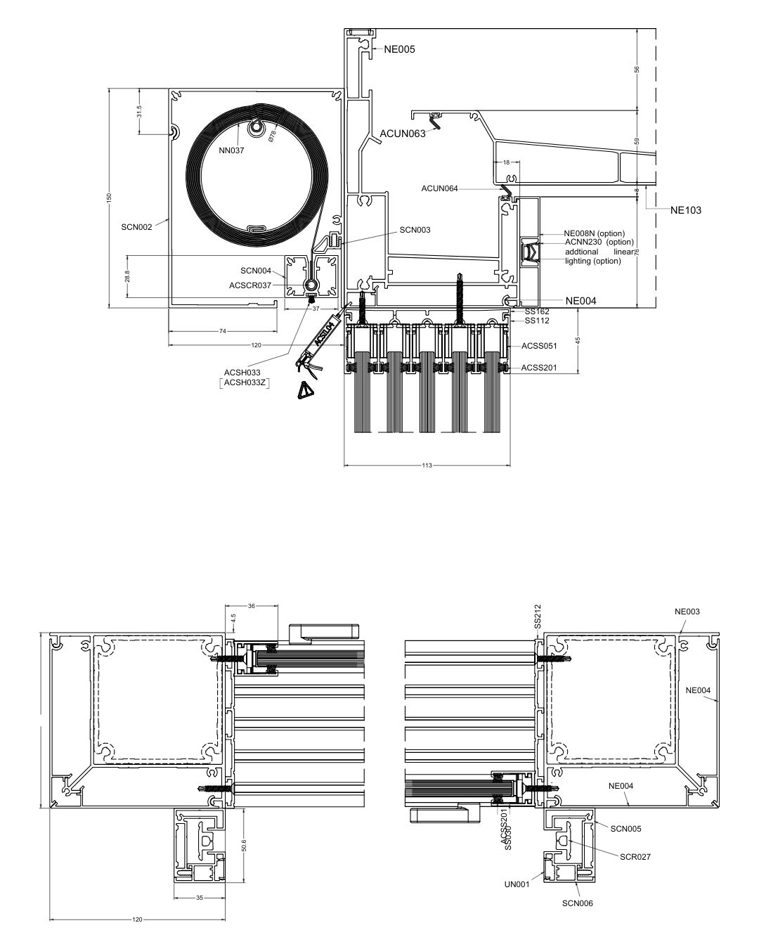
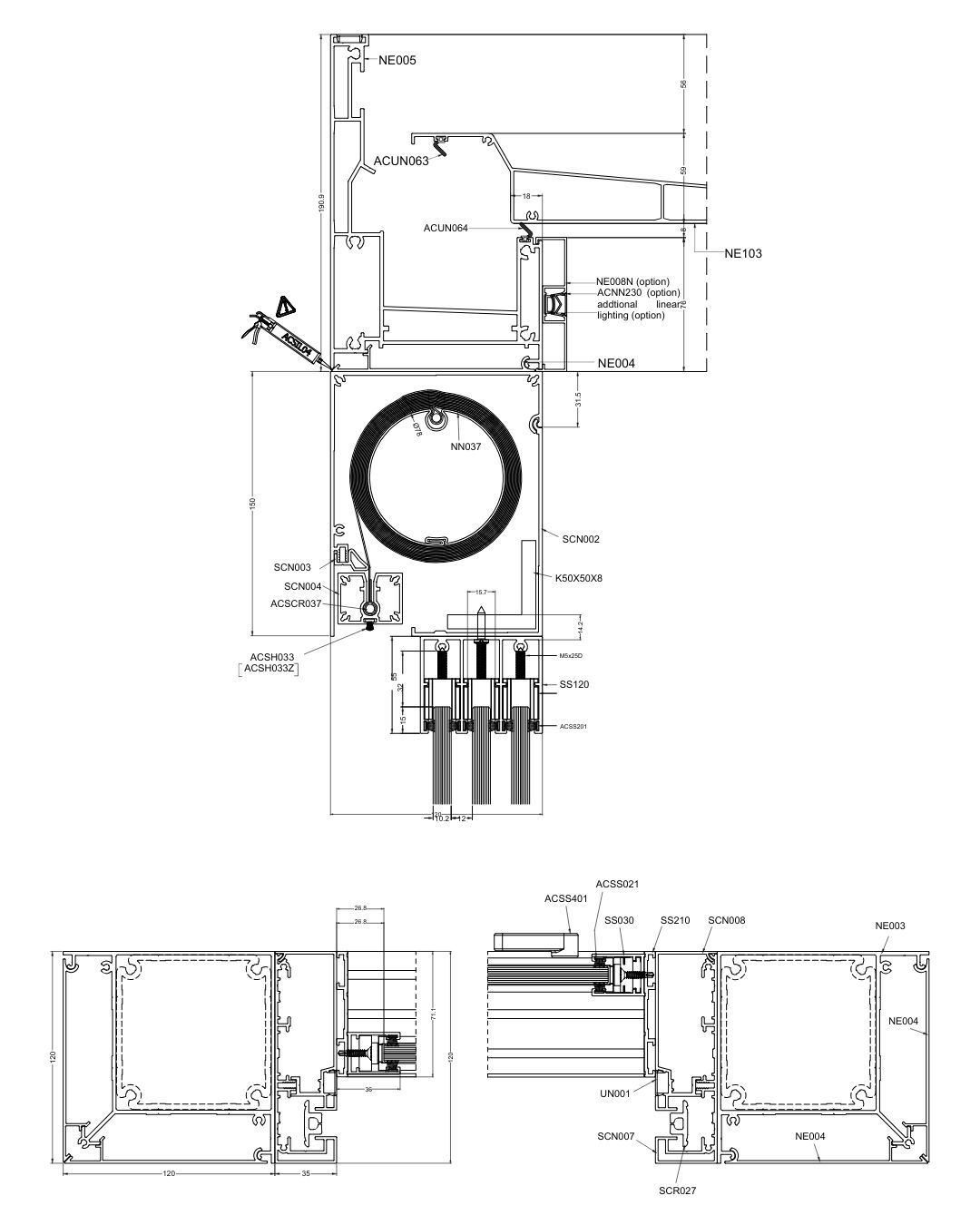
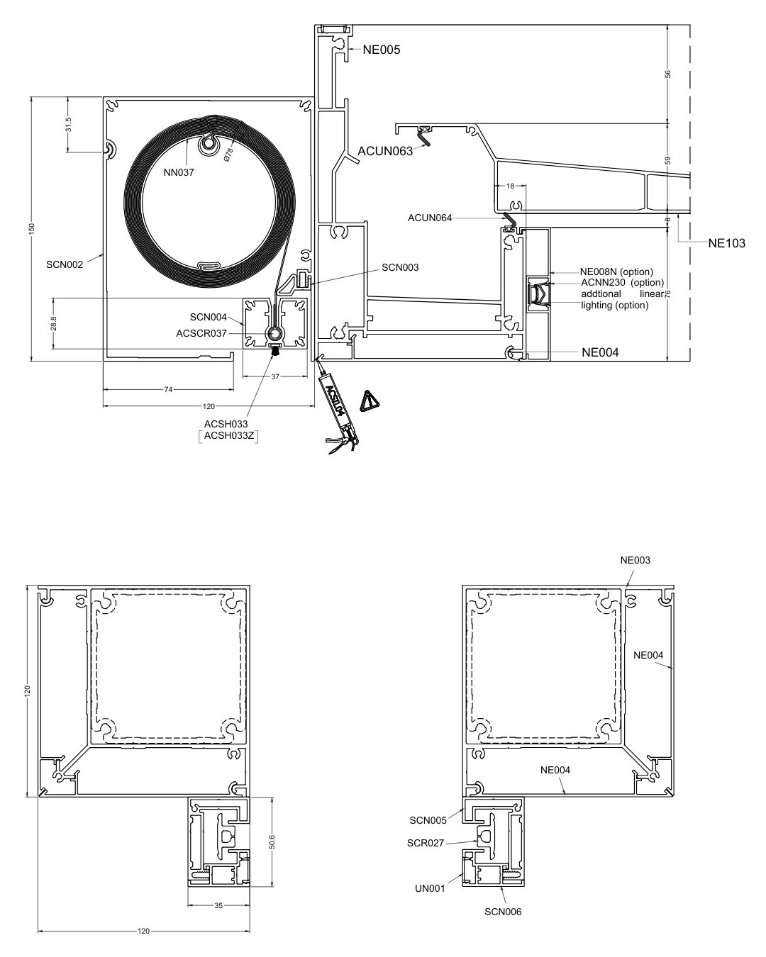
A modern shading system designed for large glass surfaces and outdoor areas. ZIP-Screen ECO is an advanced sun protection solution created with large dimensions and contemporary architecture in mind. Thanks to the use of a 120 × 150 mm cassette, the system allows installations with widths of up to 6000 mm.

Where does it work best? ZIP-Screen ECO is ideal for: large glazing in single-family homes, terraces and winter gardens, bioclimatic pergolas, restaurants and horeca spaces, offices and commercial buildings.

Advantages

Designed for large-scale projects

The system is engineered for large installations:

  • width: 700 – 6000 mm
  • height: 500 – 3000 mm

This allows even very wide glazed areas to be covered without dividing the structure into smaller modules.

Fabrics

Fabrics – functionality and design. A wide range of screen fabrics is available. Openness factor: 0%, 1%, 4%, 5%. They provide light control, privacy, protection against interior overheating.  Available colors include: whites, greys, anthracites, beiges and natural tones, deep black.

Control and automation

ZIP-Screen ECO can be operated in multiple ways:

  • radio remote controls (1-, 5-, 16-, up to 63-channel)
  • wall-mounted controls
  • smart home systems (e.g. TaHoma)
  • wind sensors (automatic protection)

Somfy motors (IO, RTS).
Full automation enhances both comfort and safety.

Perfect for pergolas and roofed structures

ZIP-Screen ECO integrates seamlessly with aluminum pergolas, terrace roofs, winter gardens, large sliding systems. Installation options: between structural posts, outside the structure, in combination with slide glass systems.

Stability and weather resistance

Thanks to ZIP technology (fabric guided within side channels), the fabric remains tensioned across the entire height. High wind resistance. No fabric waving effect. Brush seals improve tightness and smooth operation.

Selected accessories

Sections

Colors

STANDARD COLORS
NON-STANDARD COLORS
Fabrics, openness factors