AS 178HS PRO SLIM
Innovative all-glass lift-and-slide system
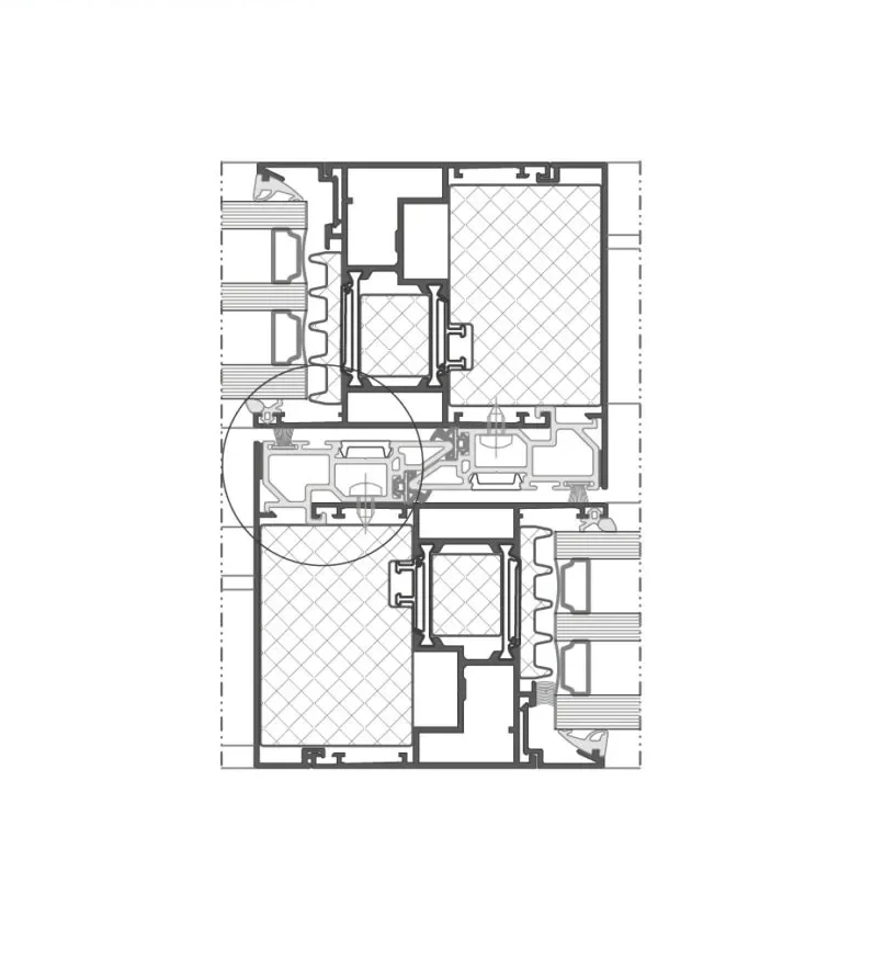
The AS 178HS MODERN lift-and-slide door system is designed for constructing large-format lift-and-slide doors with thermal insulation, perfectly suited to the design of modern architecture. The system offers extensive configuration possibilities and very good thermal performance, similar to the AS 178HS Pro Slim variant. Using the same profile on both sides of the construction improves material optimization.
Thanks to a range of implemented improvements, the AS 178HS MODERN system ensures quick and easy prefabrication and installation. The number of elements required to manufacture the structure has been reduced by approximately 35% compared to other solutions available on the market.
The introduction of 90-degree cut frame profiles, joined with screws, allows the frame to be transported in sections and assembled directly on site.
The system is available in A, C, G and K configurations. It allows the construction of all-glass corners – both internal and external – without the need for additional masking profiles, creating an elegant, flat surface on both sides of the lift-and-slide door. An acoustic seal mounted around the sash perimeter and a new fixed glazing clip have been introduced, eliminating the need to screw the profile to the frame. The system also features hidden sash sealing as standard, without any visible plastic cover. The system allows automation of door leaf movement and is compatible with linear drainage, a system mosquito screen, an all-glass balustrade, and a ventilation sash. Additionally, it is possible to use hardware with a strike hidden in the espagnolette, without the need for additional milling for the strike pocket, as well as conceal the frame within the insulation layer.
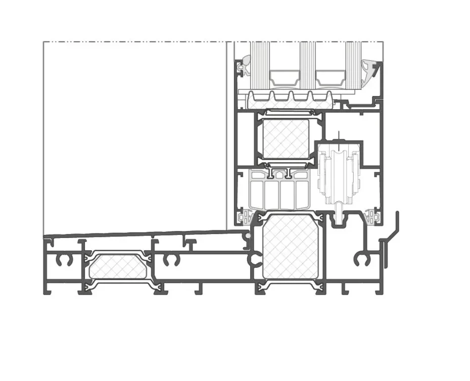
The running mechanism and the fixed part of the structure are completely concealed within the floor. Users see only a narrow 9 mm slot, which ensures smooth and effortless sliding of the door leaf. The slot solution is a 100% threshold-free variant. Concealing all mechanisms beneath the floor surface not only enhances the aesthetics but also increases functionality and everyday comfort of use.
Moreover, the slot solution provides complete freedom in floor design at the junction between the terrace and the interior space.


The system is available with mullion variants: Standard, 50 mm, and 25 mm for the most demanding projects, significantly increasing the glazed surface area.


The structures are manufactured on a MONORAIL-type frame, ensuring excellent transparency of the fixed part of the lift-and-slide door. A larger glass surface allows more natural light to enter the interior, making the space appear brighter and more spacious.
|
PROFILE |
Głębokość skrzydła 78 mm |
|
Sashes |
Maximum sash height/width: 3300 mm |
|
Maximum sash weight |
600 kg |
|
Maximum glass unit thickness |
59 mm |
|
Slim Mullion |
25 mm / 50 mm |
Users value the AS 178HS MODERN system primarily for its high level of everyday comfort and the sense of space created by very large glazing areas. They point out that interiors become brighter, more open to the surroundings, and visually larger, without compromising thermal insulation. A major advantage is the threshold-free design, which significantly improves convenience and safety—especially in homes with children, elderly residents, or where the terrace is used frequently. Users also highlight the modern, minimalist aesthetics of the system, including the slim central mullion, a limited number of visible elements, and consistent, elegant detailing. In practice, the smooth and quiet operation of the sashes, even with very large dimensions, is highly appreciated, as well as the high level of airtightness, which performs well in windy conditions and during heavy rainfall. Overall, the system is perceived as solid, durable, and trouble-free in everyday use, resulting in a high level of long-term user satisfaction.